| HOME |
| 2012/06/29 2012/10/21追記 |
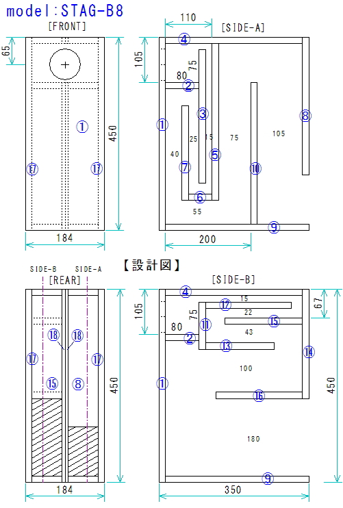
| model:STAG-B8 ブックシェルフ型スタガード・バックロードホーン |
| 【使用ユニット】Fostex FF85WK、FE83En、MarkAudio Alpair6M、他8cmフルレンジ 【材料】15mm厚ラワン合板900×1800mm、1枚(2本分) 7mm厚ラワン合板900×900mm、1枚(2本分) SPターミナル、配線コード、ボンド、クギ等 【本体サイズ】184×450×350mm |
| ■設計図&板取り図 |
|
|
8cm一発で、癖を出さずに60Hzまで十分な音圧で再生する設計。 難易度の高いダブルホーン仕様でフラット&ワイドな特性が実現できる筈。 ホーン長は、ショート=約130cm、ロング=約190cm。 |
![]() |
【内部構造】 |
![]() |
【予想再生周波数特性】 |
![]() |
| 上:ショートホーン 下:ロングホーン |
| HOME |