| HOME |
| (2016/01/28) |
| model:SDDBH-10-BASIC (スタガー・ダンプダクト・バックロードホーン・ベーシックモデル) |
| 「特性の違う2つのホーン」と「特性の違う2つのダンプダクト」を組み合わせたデュアル・バックロードホーンのベーシックモデルになります。 |
|
|
![]() |
|
|
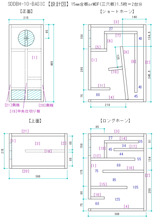
| 【使用ユニット】10cmフルレンジ各種 【材料】15mm合板orMDF(910×1820mm、1.5枚)=2台分 SPターミナル、配線、ボンド、クギ、ネジ等 【本体サイズ】W.215×H.480×D.360(mm) |
|
|
![]() |
| ■設計図(jpeg) ■板取り図-1(jpeg) ■板取り図-2(jpeg) |
|
|
| HOME |